We chose the Meadowview floorplan from Schumacher Homes because we loved its open-concept heart and family-friendly layout — but we didn’t leave it untouched.
With a realistic budget and real-life needs, we made a few smart modifications that made a big impact. Here’s exactly what we changed, why we did it, and what we’d consider doing differently (if anything).
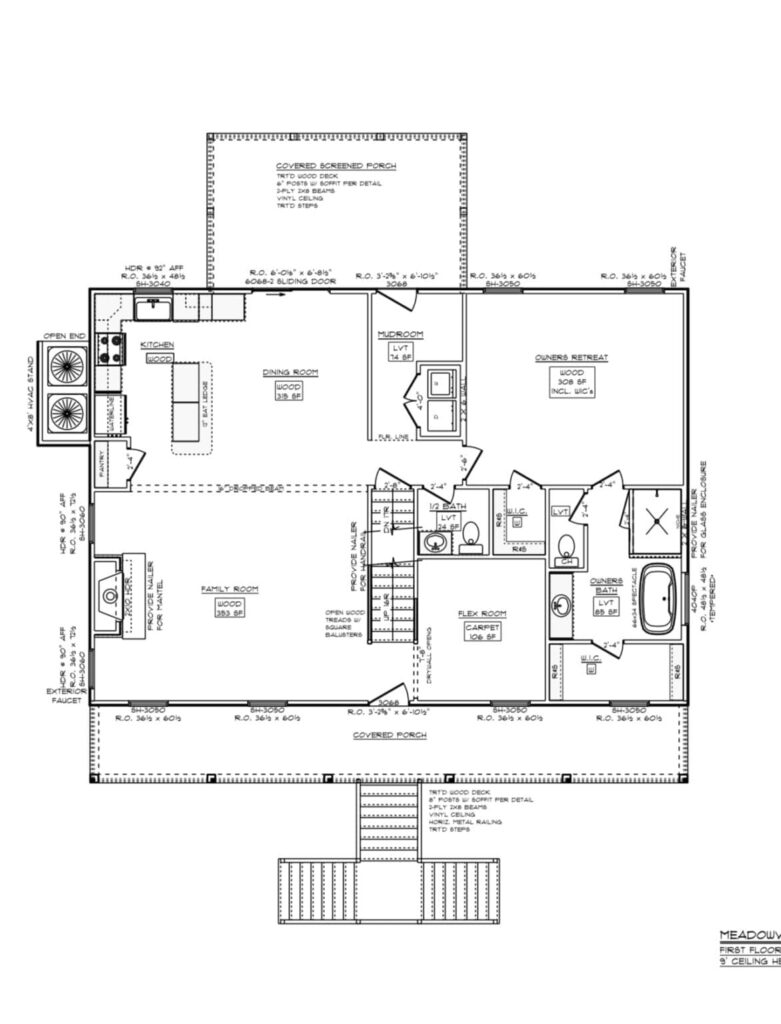
Our Schumacher Homes Meadowview Floorplan (American Tradition)
Truthfully? Our first love was the Savannah floorplan — a charming one-story we fell hard for. But once we priced out an elevated foundation for its larger footprint, we knew it wouldn’t work for our budget.
Enter: the Meadowview.
We didn’t expect to love it quite as much — but after tweaking the layout and choosing the American Tradition elevation, it ended up being the perfect fit for our long, skinny lot.
Going two-story ended up solving more problems than it caused — and gave us room to grow without blowing our budget.
What We Changed in the Schumacher Meadowview Floorplan (and Why)
Here’s where the real magic happened: the changes that made the house feel like our home.
- Elevated foundation
Required by local zoning and gave us peace of mind in our flood-prone area. Expensive, yes — but in Charleston, it’s non-negotiable. - Rear screened-in back porch (12×20)
Perfect for dinners, early mornings, and basically extending our living space outdoors. It adds real square footage we actually use. - Removed door to laundry room + created walkthrough mudroom
This was about flow. Now muddy boots and bags land in the mudroom, and the porch-to-kitchen traffic feels smoother. - Extended the kitchen island + added cabinetry
We needed prep space and storage for a family kitchen — this gave us both without the price tag of a full kitchen redesign. - Added windows in living room and owner’s bath
Natural light is always worth it. These small tweaks made the spaces feel bigger and more custom. - Upgraded to a stand-alone tub in owner’s bath
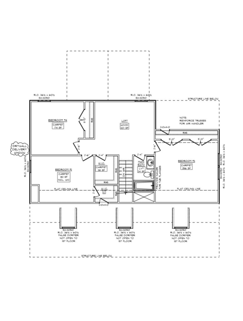
My little luxury — makes the bathroom feel spa-like without a full reno budget. - Added a 4th bedroom + loft upstairs
We’re a blended family, and it was important for every kid to have their own space. The loft gives us bonus flex space we already use daily. - Extra window in our son’s large room
Balanced out the space and made it feel more intentional. - Added a brick fireplace
This one came full circle. We removed it at first for budget reasons, then added it back — because it made the living room feel grounded and cozy. - Added a storage closet in the loft
Because my home decor habit needs a proper home
These changes weren’t about blowing our budget. They were about making the space fit our lives. And honestly? We love it more for that.


Our Schumacher Homes Meadowview Floorplan (American Tradition)
This one surprised us.
We originally planned to use Schumacher’s included vinyl siding — until we learned our historic district doesn’t allow it.
That meant upgrading to HardiPlank® siding, which added tens of thousands to the budget — but it was required for architectural review approval.
Painful? Yes. Worth it? Also yes. The siding upgrade elevated the entire look of the home and gave it the timeless feel we wanted anyway.
Lesson: Always check with your city or HOA before assuming your builder’s “standard” options apply to your lot.
What We’d Do Again in Our Schumacher Homes Meadowview Build
- Add the 4th bedroom and loft — our family needed it
- Stand-alone tub and extra bath windows — worth every penny
- Extend the kitchen island + rework the mudroom
- Screened porch = Charleston essential (hello, mosquitos)
- Brick fireplace gave the space warmth and permanence
What We’d Do Again in Our Schumacher Homes Meadowview Build
- Built-in shelving → TBD for phase two upgrades (my husband is super handy and plans to DIY these in the laundry room and my office).
- Board and batten or shiplap → definitely happening eventually, but cheaper to DIY later than pay Schumacher prices.
- Metal roof → still dreaming of that coastal shine
Maybe one day!
FAQ: Schumacher Homes Meadowview Floorplan
Q: Why did you pick the Meadowview over the Savannah?
The Savannah was our first love, but the larger footprint + elevated foundation made it cost-prohibitive. The Meadowview’s two-story layout gave us the space we needed on a narrower footprint — much better for our lot and budget.Q: Is the screened porch worth it?
In Charleston? 100% yes. Between mosquitos and hot evenings, the screened porch basically functions as an extra living room.Q: Did zoning impact your floorplan choices?
Yes. Zoning required us to elevate our foundation and upgrade siding. Always double-check your specific lot requirements before assuming builder standards apply.Q: Which floorplan changes made the biggest impact?
For us: the screened porch, mudroom, added windows, and the 4th bedroom + loft. Those changes improved daily function and comfort.
Plan Your Own Floorplan Modifications
Don’t walk into your design appointment unprepared.
Grab the Budget Build Starter Sheet to:
- Track upgrade costs
- Compare elevation options
- Prep for zoning surprises
Your Pinterest board deserves a real plan — and this is where it starts.
Design choices don’t stop with layout — paint plays a huge role too. Here’s our Sherwin-Williams paint palette for the Meadowview and why we chose it.